HRV Cool Plus™
Overview
The new Titon HRV Cool Plus™ offers a solution designed to deliver cooling, filtered air for user comfort in warmer weather conditions. It seamlessly integrates into heat recovery ventilation systems, boasting easy installation, intuitive control and effortless maintenance.
Equipped with an integrated cooling module, the HRV Q Plus/MVHR system enhances its performance by pre-cooling incoming fresh air during warmer months. By merging improved air quality and energy efficiency, MVHR systems with cooling modules greatly aid in creating sustainable and comfortable indoor environments, while also aligning with Approved Document O (ADO) guidelines by recycling energy within a home.
Features & Benefits
- Up to 3.3kW total cooling (subject to volume flow and relative humidity)
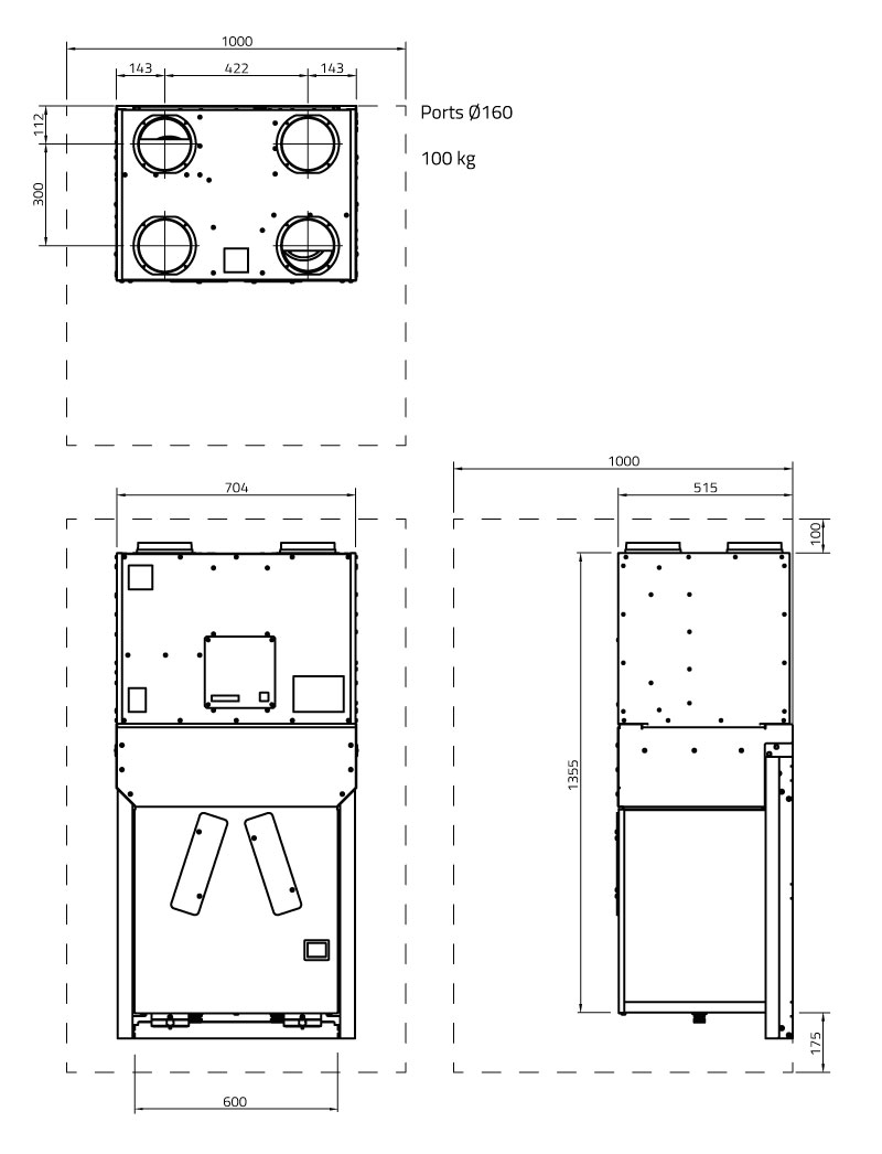
- Available for wall mounting or floor mounting. When using the wall bracket the supporting wall must be suitable for the combined weight of the cooler, MVHR, bracket assembly. (100 kg Wall / 106 kg Floor)
- Minimal maintenance of fully sealed refrigerant heat pump with coil & fin heat exchangers. Similar to a fridge or freezer. Proven & reliable. Refrigerant is R407c (GWP 1774)
- Heat cell will provide cooling assistance to pre-chill incoming fresh air when in operation exactly as it does normally with heat
- Installation below the ceiling in the heated space but compact enough to permit the location of a washing machine below
- Port sizes are 160mm
- CIBSE accredited CPD course available on Part O
Technical Information
Technical Information
Operation Cycle
- Pre-set temperature inside the dwelling is reached
- MVHR increased speed to cooler boost
- Once achieved the cooler will start
- Pre-set tempered internal temperature reached
- Cooler will deactivate
- MVHR decreased to continuous levels
Additional Controls
- Optional manual mode via the onboard aura-t™
- Minimum atmosphere temperature controls to ensure the cooler doesn’t operate with the dwelling heating system
- Cooler can be deactivated via the thermostat and/or onboard aura-t™
How
- Thermostat in Cooling Mode
- MVHR atmospheric temperature sensing
- Sufficient airflow for cooling operation automatically set by our controls
- Internal pressure sensors ensure cooler operates only when sufficient airflow is maintained
- Active communication between MVHR and Cooler
Technical Information
HRV Cool Q Plus™ –
TP755 – Vertical Wall Unit
TP754 – Floor mounted version
(left hand config only)
Filters: ISO Coarse 85% (G4) filters fitted as standard.
Pack requirements
- Cooler enabled HRV Q Plus MVHR
- HRV Cool Plus™ cooler
- Connection silencer ducts x 4
- Room Thermostat
- Wall mounting bracket or Floor standing bracket
- Middle duct cover
Accessories
- Cooler top duct cover
- HRV Drain Cover
Please note that the room thermostat will be in the packing for the HRV MVHR and that the ‘Duct cover’ will be part of the mounting kits.
Standards
Conforms to requirements of UK statutory Building Regulations and Technical Standards for Ventilation and BRE 398.
Meets requirements of Building Regulations Approved Document O (England & Wales).
EU RoHS Directive compliant.
Conforms to requirements of EC council directives relating to Electromagnetic Compatibility and Electrical Safety:
2006/95/EC (LVD), 2004/108/EC (EMC)
EN 60335-1:2002/A2:2006, EN 60335-2- 80:2003/A1:2004.
CE and UKCA marked.
Specification
Wall mounted – 704mm wide x 515mm deep x 1430 high (excluding ports). Weight 100 kg
Floor mounted – 704mm wide x 515mm deep x 2005 high (excluding ports). Weight 106 kg
Weight: Wall mounted 100 kg, Floor mounted 106 kg.
Finish: White Paint (RAL9016 Semi-gloss Traffic White)
Materials:
Housing: Zintec sheet steel housing, powder coated white
Internals: Expanded polypropylene (EPP)
Heat exchanger: Made from high quality PET materials
Internal insulation: Closed cell foamed Nitrile rubber, class ‘O’ fire rating
Standard filters: Grade ISO Coarse 85% (G4) synthetic filters.
Electrical:
HRV Unit: 230V ~ 50/60Hz, 5A fuse
Cooler: 230V ~ 50/60Hz, 8A fuse
Installation: To be installed accordance with the relevant and applicable building regulations.
Maintenance: Service and filter clean/replacement subject to local environment – see product manual.
Acoustics: Full acoustic data available online www.titon.com/acoustics.
Air Performance

Preliminary Tempering Performance
db 29 wb 21.2 – External Air Temperature
| Conditions | Cooling (kW) / Airflow Rates (l/s) |
60 | 70 | 80 | 90 | 100 | 110 | 120 |
| 23°C Internal | Combined Total kW | 1.75 | 1.94 | 2.12 | 2.28 | 2.42 | 2.56 | 2.68 |
| Combined Sensible kW | 1.26 | 1.42 | 1.57 | 1.72 | 1.87 | 2.01 | 2.14 | |
| Supply air °C | 11.6 | 12.2 | 12.7 | 13.1 | 13.5 | 13.9 | 14.2 | |
| 24°C Internal | Combined Total kW | 1.70 | 1.88 | 2.04 | 2.19 | 2.33 | 2.46 | 2.58 |
| Combined Sensible kW | 1.23 | 1.39 | 1.54 | 1.69 | 1.83 | 1.96 | 2.10 | |
| Supply air °C | 12.0 | 12.5 | 13.0 | 13.4 | 13.8 | 14.2 | 14.5 | |
| 25°C Internal | Combined Total kW | 1.64 | 1.81 | 1.97 | 2.11 | 2.24 | 2.36 | 2.47 |
| Combined Sensible kW | 1.20 | 1.36 | 1.51 | 1.65 | 1.79 | 1.92 | 2.05 | |
| Supply air °C | 12.3 | 12.9 | 13.4 | 13.8 | 14.2 | 14.5 | 14.8 | |
| 26°C Internal | Combined Total kW | 1.58 | 1.75 | 1.89 | 2.03 | 2.15 | 2.26 | 2.36 |
| Combined Sensible kW | 1.18 | 1.33 | 1.47 | 1.61 | 1.75 | 1.88 | 2.01 | |
| Supply air °C | 12.7 | 13.2 | 13.7 | 14.1 | 14.5 | 14.8 | 15.1 |
db 32 wb 23.7 – External Air Temperature
| Conditions | Cooling (kW) / Airflow Rates (l/s) | 60 | 70 | 80 | 90 | 100 | 110 | 120 |
| 23°C Internal | Combined Total kW | 1.93 | 2.15 | 2.36 | 2.55 | 2.73 | 2.90 | 3.06 |
| Combined Sensible kW | 1.30 | 1.48 | 1.65 | 1.81 | 1.97 | 2.13 | 2.28 | |
| Supply air °C | 14.0 | 14.4 | 14.9 | 15.3 | 15.6 | 15.9 | 16.2 | |
| 24°C Internal | Combined Total kW | 1.87 | 2.09 | 2.28 | 2.47 | 2.64 | 2.80 | 2.95 |
| Combined Sensible kW | 1.28 | 1.45 | 1.62 | 1.78 | 1.94 | 2.09 | 2.24 | |
| Supply air °C | 14.3 | 14.8 | 15.2 | 15.6 | 15.9 | 16.2 | 16.5 | |
| 25°C Internal | Combined Total kW | 1.81 | 2.02 | 2.21 | 2.39 | 2.55 | 2.70 | 2.84 |
| Combined Sensible kW | 1.25 | 1.43 | 1.59 | 1.75 | 1.90 | 2.05 | 2.19 | |
| Supply air °C | 14.6 | 15.1 | 15.5 | 15.9 | 16.2 | 16.5 | 16.8 | |
| 26°C Internal | Combined Total kW | 1.75 | 1.95 | 2.13 | 2.30 | 2.45 | 2.60 | 2.73 |
| Combined Sensible kW | 1.23 | 1.40 | 1.56 | 1.71 | 1.86 | 2.01 | 2.15 | |
| Supply air °C | 15.0 | 15.4 | 15.8 | 16.2 | 16.5 | 16.8 | 17.1 |
db 34 wb 25.3 – External Air Temperature
| Conditions | Cooling (kW) / Airflow Rates (l/s) | 60 | 70 | 80 | 90 | 100 | 110 | 120 |
| 23°C Internal | Combined Total kW | 2.04 | 2.29 | 2.52 | 2.74 | 2.94 | 3.13 | 3.31 |
| Combined Sensible kW | 1.33 | 1.52 | 1.70 | 1.87 | 2.04 | 2.21 | 2.37 | |
| Supply air °C | 15.5 | 16.0 | 16.4 | 16.7 | 17.1 | 17.4 | 17.6 | |
| 24°C Internal | Combined Total kW | 1.98 | 2.22 | 2.45 | 2.65 | 2.85 | 3.03 | 3.20 |
| Combined Sensible kW | 1.31 | 1.49 | 1.67 | 1.84 | 2.01 | 2.17 | 2.33 | |
| Supply air °C | 15.9 | 16.3 | 16.7 | 17.0 | 17.4 | 17.6 | 17.9 | |
| 25°C Internal | Combined Total kW | 1.92 | 2.15 | 2.37 | 2.57 | 2.75 | 2.93 | 3.09 |
| Combined Sensible kW | 1.29 | 1.47 | 1.64 | 1.81 | 1.97 | 2.13 | 2.28 | |
| Supply air °C | 16.2 | 16.6 | 17.0 | 17.3 | 17.6 | 17.9 | 18.2 | |
| 26°C Internal | Combined Total kW | 1.86 | 2.09 | 2.29 | 2.48 | 2.66 | 2.82 | 2.98 |
| Combined Sensible kW | 1.26 | 1.44 | 1.61 | 1.78 | 1.93 | 2.09 | 2.24 | |
| Supply air °C | 16.6 | 16.9 | 17.3 | 17.6 | 17.9 | 18.2 | 18.5 |
The combined total kW cooling accounted for coolth recovery, sensible and latent cooling. These results therefore reflect expected cooling power and supply air temperatures when in operation. For cooling output data based on your assumed external design conditions, please consult Titon.
Wall Mounted - Drawing & Dimensions

Floor Mounted - Drawing & Dimensions

Documentation
Resources
Manuals and Documentation
Product Manual - HRV Cool Plus™
URL for Product Manual - HRV Cool Plus™ copied to clipboard.
User Guide - HRV Cool Plus Thermostat (BM1275)
URL for User Guide - HRV Cool Plus Thermostat (BM1275) copied to clipboard.
Catalogues
Ventilation Systems Catalogue
URL for Ventilation Systems Catalogue copied to clipboard.
Ventilation Product Overview Brochure
URL for Ventilation Product Overview Brochure copied to clipboard.
HRV Cool Plus™ - Brochure
URL for HRV Cool Plus™ - Brochure copied to clipboard.
HRV Cool Plus™ - Catalogue Page
URL for HRV Cool Plus™ - Catalogue Page copied to clipboard.
Acoustic Information
HRV Cool Plus™ - Acoustic Performance
URL for HRV Cool Plus™ - Acoustic Performance copied to clipboard.
User Guides
User Guide - HRV Cool Plus Thermostat (BM1275)
URL for User Guide - HRV Cool Plus Thermostat (BM1275) copied to clipboard.
BIM Models
HRV Cool Plus™ - BIM Model
URL for HRV Cool Plus™ - BIM Model copied to clipboard.