Skip to content

Trimvent Supervent

Trickle ventilation system
FOR USE ON VINYL, WOOD, ALUMINUM OR FIBERGLASS WINDOWS

Overview

With today’s remit of supplying airtight and insulated buildings, it is important to balance these requirements with ventilation to help improve indoor air quality and reduce condensation. The Trimvent Supervent is a solution that can be easily be incorporated into your system design that works at all levels.

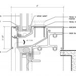
Your sections can incorporate this ventilation system at the sill horizontal. Fresh outside air, from the exterior of the building, is allowed into the room and stale moist indoor air to escape, providing natural ventilation without the need of any power or opening of a window. It is sightless from the exterior and does not affect the aesthetics of the exterior fascia.

This highly successful design was first used on the MGM Hotel and Casino, Las Vegas. Since that original application, it has also been installed on the Bellagio, Paris, Caesar’s Palace and Aladdin hotels in the Las Vegas area plus others worldwide.
Titon is currently working with consultants and architects for future developments.

It can fit within most situations and accommodates the finish and color requirements of the system to fully integrate without being intrusive.

Suitable for

  • ALUMINUM
  • VINYL
  • WOOD
  • FIBERGLASS

Features & Benefits

  • Original and successful Trimvent design.
  • Large air opening.
  • Can replace small opening window in curtain walling systems.
  • Sightless from exterior.
  • Used in hotels and casinos all around the world.
  • Screens can be utilized if required.
  • Dual color capability – interior and exterior.
  • Suitable for aluminum, wood and vinyl windows.

Technical Information

Technical Information

Units

Imperial
Metric (mm)

Imperial Details

Product Product Code (L) Length (W) Width (P) Projection Available Air Opening (Free Area) Slot Size
Supervent Range – 1 1⁄4″ slot width
SV522 Supervent TA833 20 9⁄16 “ 1 1⁄2″ 1⁄2″ – 1″ 15 3⁄8 in2 17 7⁄8″ x 1 1⁄4″
SV697 Supervent TA814 27 7⁄16″ 1 1⁄2″ 1⁄2″ – 1″ 21 5⁄16 in2 24 3⁄4″ x 1 1⁄4″
SV762 Supervent TA830 30″ 1 1⁄2 “ 1⁄2″ – 1″ 23 1⁄2 in2 27 5⁄16″ x 1 1⁄4″
SV970 Supervent TA802 38 3⁄16″ 1 1⁄2″ 1⁄2″ – 1″ 30 5⁄8 in2 35 1⁄2″ x 1 1⁄4″
SV1100 Supervent TA803 43 5⁄16″ 1 1⁄2″ 1⁄2″ – 1″ 36 in2 40 5⁄8″ x 1 1⁄4″
SV1192 Supervent TA834 46 15⁄16″ 1 1⁄2 “ 1⁄2″ – 1″

 

Manufactured From

Aluminum 6063 HIT T6, component parts PVCu, POM & PP (UV Stable).

Recommended Screws

(No.6) Pan or Round Head or equivalent.

Available finishes:

White and black finish as standard. Other colors available on request.

 

 

Metric Details

Product Product Code (L) Length (W) Width (P) Projection Available Air Opening (Free Area) mm2 Slot Size
Supervent Range – 32mm slot width
SV522 Supervent TA833 522 38 12 – 25 9900 454 x 32
SV697 Supervent TA814 697 38 12 – 25 13750 629 x 32
SV762 Supervent TA830 762 38 12 – 25 15180 694 x 32
SV970 Supervent TA802 970 38 12 – 25 22631 902 x 32
SV1100 Supervent TA803 1100 38 12 – 25 23226 1032 x 32
SV1192 Supervent TA834 1192 38 12 – 25

 

Manufactured From

Aluminum 6063 HIT T6, component parts PVCu, POM & PP (UV Stable).

Recommended Screws

(No.6) Pan or Round Head or equivalent.

Available finishes:

White and black finish as standard. Other colors available on request.

 

Documentation

Resources

Catalogue Page

Trimvent Supervent Catalog Page

158.9 KB (English (US))
Download

URL for Trimvent Supervent Catalog Page copied to clipboard.

Contact one of our experts

Whatever your query, please get in touch.